For this year’s Symbiosis Showcase, our team presents a proposal to transform a space within the RP Career Centre into an inclusive environment designed to support students with Special Educational Needs (SEN).
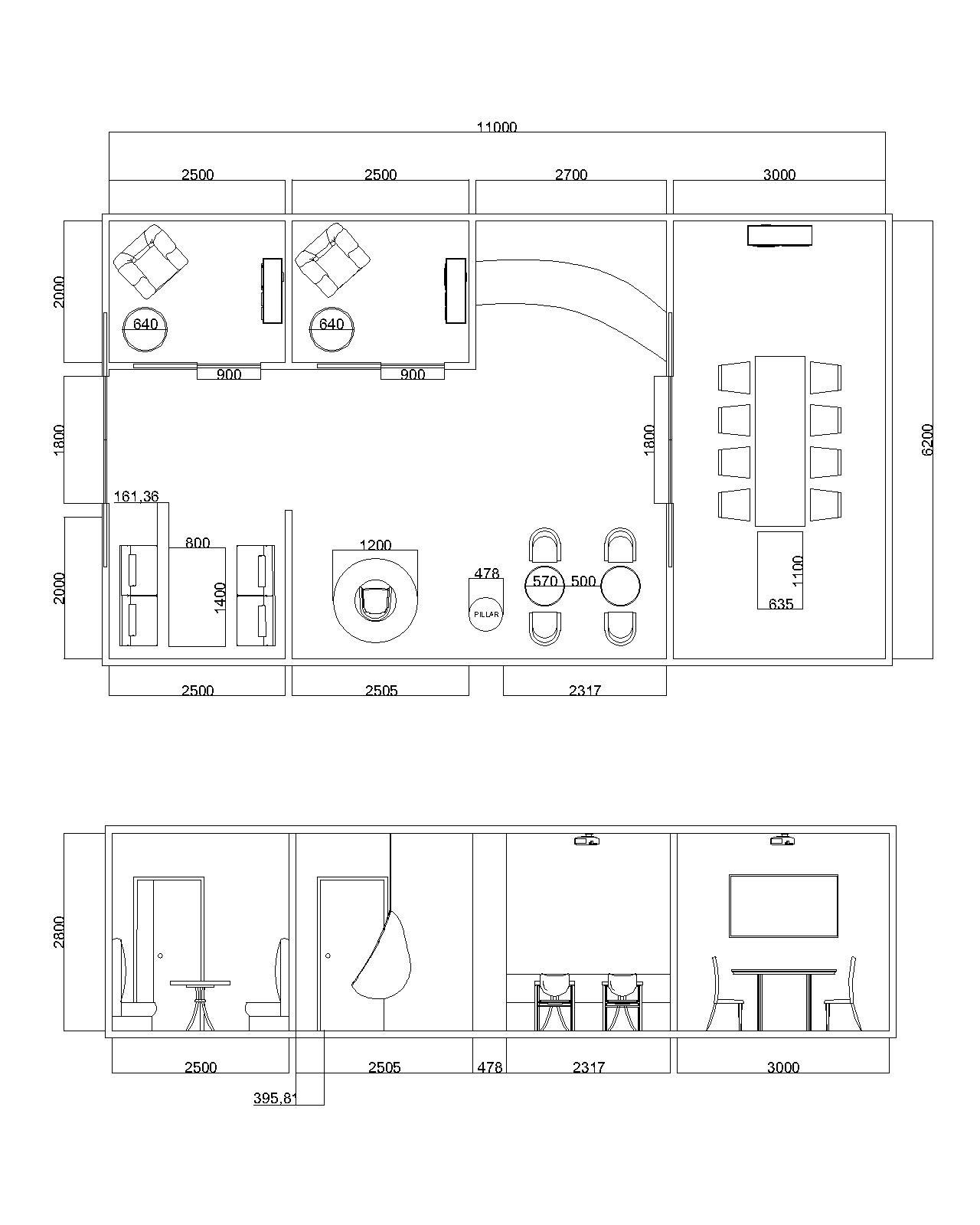
Our project focuses on the creation of a thoughtfully planned SEN space that prioritises comfort, regulation and accessibility. The redesigned area features two differently themed sensory rooms, each carefully developed to cater to varying sensory preferences and emotional needs. These rooms provide students with a safe and calming setting where they can decompress, regain focus and build confidence before engaging in academic or career-related activities.
In addition to the sensory rooms, the space incorporates a swing chair to encourage self-regulation through gentle movement, alongside platform-style stadium seating that supports informal interaction, small group discussions and peer engagement. A dedicated meeting room allows for private consultations and one-to-one guidance sessions, while café-style seating creates a warm and welcoming atmosphere within the Career Centre.
Through this redesign, we aim to foster a supportive and student-centred environment that enhances accessibility and promotes belonging, independence and overall well-being for students with SEN at Republic Polytechnic.
Shortlist me

